příkon 7 400 W
Nominální výkon 220-240/380-415 V
Výkon ventilátoru při intenzivním stupni - provoz odvětrávání 622 m³/h
Home Connect Ano
Barva
Černá
Šířka
80 cm
Rozměry varných zón
1 x (40,0 x 24,0 cm), 1 x (40,0 x 24,0 cm)
Výkon varných zón
4 x 2.2 (3.7) kW
Typ rámečku
nerezový rámeček
Počet varných zón s topnou spirálou
0
Počet indukčních varných zón
4
Funkce Boost
všechny
Druh odvětrání
Odvětrání/cirkulace
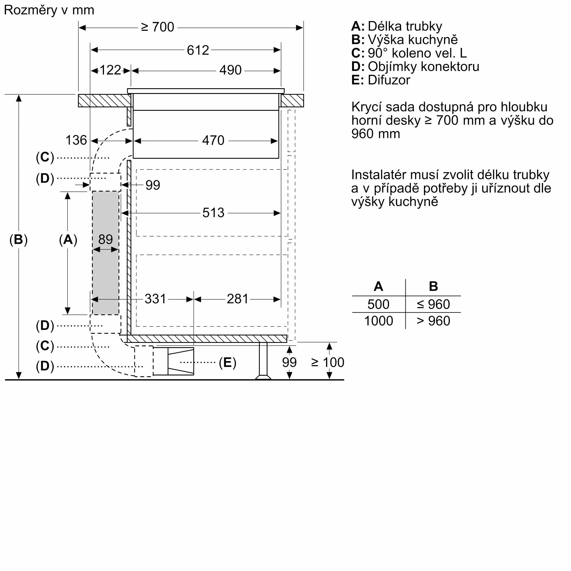
Max. výkon ventilátoru - provoz odvětrávání
500 m³/h
Výkon ventilátoru při intenzivním stupni - provoz odvětrávání
622 m³/h
Max. výkon ventilátoru - provoz s cirkulací vzduchu
499 m³/h
Výkon ventilátoru při intenzivním stupni - provoz s cirkulací vzduchu
595.0 m³/h
Sound power at max. speed (2010/30/EC)
69 dB
Sound power boost (2010/30/EC)
74 dB
Noise level
69 dB(A) re 1 pW
Spotřeba energie na varné desky
185,0 Wh/kg
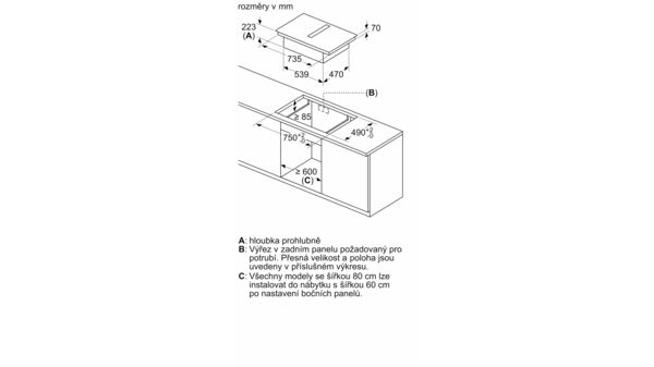
Rozměry spotřebiče
223 x 812 x 520 mm
Min.výška niky
490 mm
Max. výška niky
490 mm
Minimální šířka niky
750 mm
Maximální šířka niky
750 mm
Hloubka niky
223 mm
Rozměry a váha




















































příkon
7 400 W
Nominální výkon
220-240/380-415 V
Délka přívodního kabelu
110 cm
Typ zástrčky
bez zástrčky
Typ ovládání
ovládání dual lightSlider
Stupně řízení varných zón
17 stupňů výkonu
Flexibilita varných zón
2 flexibilní varné zóny
powerBoost
Ano
Ne
Ano
Ne
cookingSensor Plus ready: možnost dovybavit speciálním teplotním senzorem, který zajistí precizní řízení teploty během procesu vaření v pěti teplotních úrovních
Ne
Ano
Funkce přenosu nastavení
Ano
Quick start
Ano
Funkce udržování tepla
Ano
Home Connect
Ano
en: Power consumption standby/display off
0,5 W
Power consumption standby/network: Please check the user manual for how to switch off the WiFi module.
2,0 W
en: Time auto-standby/displ. off
20,0 min
en: Time auto-standby/network
20,0 min
Ukazatel zbytkového tepla
Separátní